 
  Porcelanosa Arbeitsplatten
 
		 
		
				
		
		In dieser stilvollen Küche in Solingen trifft modernes Design auf durchdachte Funktionalität. Die Kücheninsel steht zentral zwischen der großen Garten-Schiebetür und der Küchenzeile und schafft eine harmonische Verbindung zum Wohnbereich. Obwohl der Raum klar strukturiert ist, bleibt er offen und einladend.
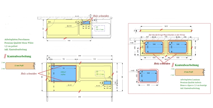
Für die Arbeitsplatten wurde Porcelanosa Moon White gewählt – eine elegante, polierte Keramik in 1,2 cm Stärke, die mit ihrer dezenten Marmorierung für eine zeitlose Ästhetik sorgt. Die Arbeitsplatte der Küchenzeile misst 140,00 x 59,70 cm und wurde mit einer flächenbündigen Steckdose ausgestattet. Die Kücheninsel erhielt eine großzügige Arbeitsplatte von 206,80 x 90,00 cm, die einen Aufbauausschnitt für das Cerankochfeld sowie eine flächenbündige Steckdose beinhaltet.
Auch im Badezimmer wurde ein stilvolles Highlight gesetzt: Eine Waschtischplatte aus Laminam Ardesia Bianco a Spacco in 2,0 cm Stärke bringt mit ihrer strukturierten Oberfläche eine edle Steinoptik in den Raum. Mit Maßen von 161,10 x 48,60 cm bietet sie Platz für ein Doppelwaschbecken, ergänzt durch eine 7,0 cm hohe Wischleiste an der Wand. Die Montage erfolgte auf einem smaragdgrünen Hängeschrank, der dem Badezimmer eine moderne und luxuriöse Note verleiht.
Lieferung: Porcelanosa Arbeitsplatten Moon White und Laminam Waschtischplatte Ardesia Bianco a Spacco
Lieferort: Solingen in Nordrhein-Westfalen






© Copyright Arbeitsplatten Deutschland 2013 - 2025. | WEB Design MAAG-Projekt