Granit Arbeitsplatten
Die Granit Arbeitsplatten aus dem Material Cielo Ivory haben einen wunderschöner cremeweißen Grundton natürlich durchzogen von anthrazit- und beigefarbenen Maserungen. Durch die einzelnen Kristalline und Maserungen wirkt die Cielo Ivory Arbeitsplatte besonders lebhaft, gleichzeitig schafft dieser Naturstein ein elegantes und zeitloses Ambiente. Cielo Ivory ist eine neue Entdeckung aus Indien, alternativ für den beliebten Kashmir White.
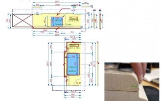
Diese Granit Arbeitsplatten die in der Nähe von Wien in Österreich montiert wurden sind in 2 cm Stärke und das besondere an ihnen sind die Barrockkanten. Die Oberflächen wurden poliert und zwei Ausschnitte (Unterbau und gesägter Ausschnitt) eingearbeitet, sowie eine Bohrung vor Ort gebohrt.
Es wurden zwei Arbeitsplatten mit den Maßen: 201,6 x 64 cm und 182,5 x 70,6 cm und vier Sockelleisten angefertigt und montiert.
Lieferung: Granit Arbeitsplatten Cielo Ivory
Lieferort: Baumgarten bei Wien in Österreich






© Copyright Arbeitsplatten Deutschland 2013 - 2026. | WEB Design MAAG-Projekt